Für Besucher des
Portals noch
nicht sichtbar
Aubachstraße 15
56410 Montabaur
Gerne auch individuell nach Vereinbarung
Anbieter kontaktieren| FORM | GERÄTE | STIL | FARBE |
|---|---|---|---|
| U-Form | JA | Modern | grau |
| Marke | Häcker |
|---|---|
| Modell | COMET |
| PREIS |
|
| FORM | U-Form |
| Diese Küche ist erweiterungsfähig | |
üche in U-Form mit modernen Spachteloptik-Fronten in Hell und Dunkel. Die Fronten zaubern eine zeitlose, elegante Tiefe und setzen moderne Akzente. Oberschränke mit Glas zum Klappen bieten stilvolle Sichtfenster für Geschirr und Gläser, lassen den Raum leichter erscheinen und ermöglichen schnel...
üche in U-Form mit modernen Spachteloptik-Fronten in Hell und Dunkel. Die Fronten zaubern eine zeitlose, elegante Tiefe und setzen moderne Akzente. Oberschränke mit Glas zum Klappen bieten stilvolle Sichtfenster für Geschirr und Gläser, lassen den Raum leichter erscheinen und ermöglichen schnelle, praktische Zugriffe. Die durchgehende Arbeitsfläche verbindet die drei Flügel und schafft eine großzügige Arbeitszone. Eine schwarze Glasnischenrückwand hinter dem Kochfeld setzt einen eleganten, modernen Kontrast, reflektiert Licht dezent und schützt die Wand zugleich stilvoll. Klare Linien, dezente Griffe und clevere Ausstattung und maximieren Stauraum, während eine passende Beleuchtung für eine helle, einladende Atmosphäre sorgt.
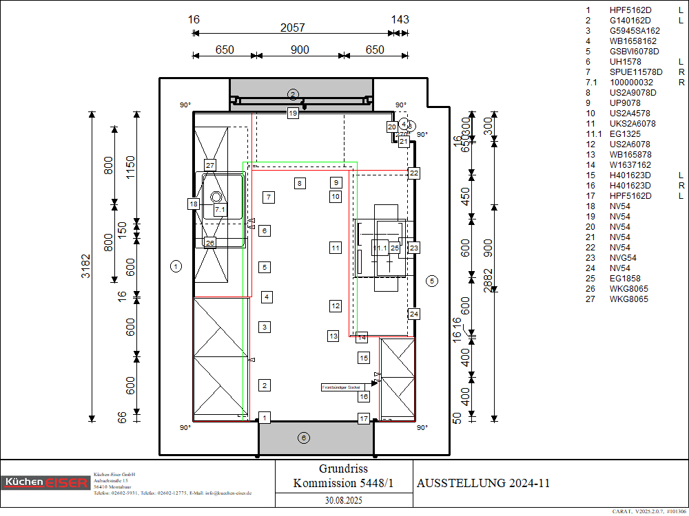
Schematische Darstellung des Grundrisses
| 318 cm | 228 cm | 318 cm | |
| ARBEITSHÖHE 95 cm | |||
| FRONTFARBE | Spachtelbeton Graphit und Opalgrau |
|---|---|
| FrontDekor | Sonstiges |
| Arbeitsplatte | Schichtstoff |
| Backofen | |
|---|---|
| Marke | Blaupunkt |
| Modell | 5B50P8590 |
| EEK* |
|
| Kochfeld | |
|---|---|
| Marke | Blaupunkt |
| Modell | 5IE64253 |
| EEK* |
| Dunstabzug | |
|---|---|
| Marke | sonstige |
| Modell | FRANKE FLG905BK |
| EEK* |
|
| Dampfgarer | |
|---|---|
| Marke | Blaupunkt |
| Modell | 5C90S8990 |
| EEK* |
| Kühlschrank | |
|---|---|
| Marke | Blaupunkt |
| Modell | 5CE351FE0 |
| EEK* |
|
| Geschirrspüler | |
|---|---|
| Marke | Blaupunkt |
| Modell | 5VH5X03HTE |
| EEK* |
|
| Spüle | |
|---|---|
| Modell | Systemceram MERA 90 |
| Armatur | |
|---|---|
| Modell | GESSI Thalium |
| FORM | GERÄTE | STIL | FARBE |
|---|---|---|---|
| U-Form | JA | Modern | grau |
Küchen Eiser GmbH
Aubachstraße 15
56410 Montabaur
ausstellungskuechen.com ist das Portal für Ausstellungsküchen. Fachhändler aus ganz Deutschland bieten hier ihre Ausstellungsküchen und Musterküchen zum Verkauf an. Kunden können aus einem umfangreichen Angebot wählen. Der große Vorteil unseres Portals: Du als Kunde kannst direkt Kontakt zu den Fachhändlern aufnehmen und die Küchen vor Ort anschauen. Auch die Bezahlung erfolgt direkt an den Händler, du hast also immer einen direkten Ansprechpartner. Ein weiterer Vorteil liegt im großen Serviceangebot der Fachhändler. Angefangen von der Beratung bis hin zur Lieferung und Montage stehen dir die Küchen-Experten mit zahlreichen Dienstleistungen zur Seite. Auch eine Garantie ist oft möglich.
Finde jetzt deine Traumküche auf ausstellungskuechen.com!