Für Besucher des
Portals noch
nicht sichtbar
Gerne auch individuell nach Vereinbarung
Anbieter kontaktieren| FORM | GERÄTE | STIL | FARBE |
|---|---|---|---|
| Insel | JA | Landhaus | weiß |
HOT
Diese Küche wurde in den letzten 48 Stunden sehr oft aufgerufen
| Marke | impuls |
|---|---|
| Modell | IP 4250 |
| PREIS |
|
| FORM | Insel |
| Diese Küche ist erweiterungsfähig | |
IMPULS IP4250 Magnolienweiß moderner Landhausstil ist immer in
Angebotstyp: Musterküche
Alles drin und klar in Optik und Funktion.
Auch nach Ihren Wünschen veränderbar oder zu ergänzen. Sprechen Sie uns an.
Traumküche mit hochwertigen AEG Geräten, Induktion mit Pyrolytische Selbstreinigu...
IMPULS IP4250 Magnolienweiß moderner Landhausstil ist immer in
Angebotstyp: Musterküche
Alles drin und klar in Optik und Funktion.
Auch nach Ihren Wünschen veränderbar oder zu ergänzen. Sprechen Sie uns an.
Traumküche mit hochwertigen AEG Geräten, Induktion mit Pyrolytische Selbstreinigung inklusive, Großraumkühl- Gefreirkombination und Spüler sind extraklasse. Die Rückwände sind in Holz/ Kräuterdekor ebenfalls dabei. Die Wandschränke mit LED Arbeitsplatzbeleuchtung ausgestattet und die unverwüstliche Blanco Spüle mit Armatur machen das Ensemble zum Traumpaket.
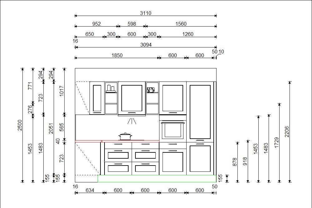
Die Länge der linken Wandseite beträgt 270x60cm BxT
Die Länge der rechten Wandseite beträgt 310x60cm BxT
Die optionale Tisch/Insel Lösung ist 125x97cm BxT (Mehrpreis 595€)
Und das gehört alles zum Gesamtumfang:
UVA25 L Diagonal-Unterschrank 560/372 mm tief 1 Vollauszug mit
Dämpfung 2 verstellbare Drahtkörbe
U60IA L Unterschrank mit Innenauszügen 1 Drehtür 2 Innenauszüge
TGV60 Frontplatte für vollintegrierte Unterbau-Geschirrspülmaschinen
FD395V AEG Einbaugeschirrspüler mit 82 cm Höhe AirDry Technologie Spülprogramme: 160 Minuten-90 Minuten-Eco 50°C-Quick 30 Minuten-Vorspülen Optionen: nein Unterkorb: Tellerhalter fix Oberkorb: 2 klappbare Tassenablagen, Aqua Control - Wasserstopp geeignet für den Hocheinbau Akustisches Signal am Programmende AutoOff -Abschaltautomatik LED-Display 3 Stunden Startzeitvorwahl Schlepptürtechnologie 'Perfect Fit' für Fronten von 645-776 mm Manuell höhenverstellbarer Oberkorb Elektronische Nachfüllanzeige für Salz und Klarspülmittel 13 E
SPA60 Spülen-Unterschrank 1 Auszug 1 fest montierte Innenblende
518874 L BLANCO METRA 6 SILGRANIT felsgrau Einbau-Becken reversibel mit Ablauffernbedienung Untermaß: 600 mm Lieferumfang: Ablaufgarnitur mit Raumsparrohr, 2 x 3 1/2'' Korbventil mit integrierter Ablauffernbedienung (Drehknopf) für das Hauptbecken
230734 Wellentropf Kunststoff schwarz für Unterbaubecken
521476 R BLANCO CATRIS-S HD chrom Küchenarmatur Hochdruck mit Schlauchbrause Lieferumfang: - 360° schwenkbarer Auslauf für größere Reichweite, - Ø 35 mm Armaturenbohrung erforderlich, - Mit Keramik-Scheibenkartusche, -Patentierter Strahlregler für deutlich reduzierte Verkalkung, - Brause aus Kunststoff, - Metallummantelter Brauseschlauch, - Flexible Anschlussrohre, 700 mm lang und 3 1/2'' Mutter, -Stabilisierungsplatte zur Erhöhung der Standfestigkeit der Armatur beim Einbau in Edelstahlspülen, - Mit Rückflussverhinderer und damit garantiert rücklaufsicher nach EN 1717
UPEF65 Eckpassleiste für Unterschränke ohne Sockel, 723 mm hoch Breite: 650 mm
US2A60 Unterschrank 1 Schubkasten 2 Auszüge
IKB64411XB AEG Autark-Kochfeld mit oben liegenden Bedienelementen Beheizungsart: Induktion 4 Induktions-Kochzonen 14 Stufen Regulierung der Kochstellen OptiFit Frame -Edelstahlrahmen Hob²Hood-Funktion Direct-Control Kochzonen -Ansteuerung Power-Funktion für jede Kochzone Pause-Funktion Elektronische Anzeigen für alle 4 Kochzonen 4 elektronische Automatikkochstellen Topferkennung Öko-Timer CountUp- Timer
US2A60 Unterschrank 1 Schubkasten 2 Auszüge
GBS02 R Seitenschrank für Einbaugeräte Nischenhöhe 590 mm 1 Drehtür 1 verstellbarer Fachboden 1 Schubkasten 1 Drehtür 1 verstellbarer Fachboden
BD742P AEG AssistedCooking Backofen mit Pyrolyse Made in Germany Pyrolytische Selbstreinigung, 3-stufig SoftClosing MaxiKlasse™ - Extra großer Garraum (71 Liter) TFT Full Touch Farbdisplay (95 x 35 mm) Elektronikuhr mit Timerfunktionen Elektronische Temperaturregelung Temperaturbereich von 30°C -300°C Kerntemperatursensor Temperaturvorschlag Kochassistent Restwärmeanzeige und - nutzung Automatische Abschaltung für Backofen Energieeffizienzklasse (2010/30/EU): A++
G17802 R Seitenschrank für Einbaugeräte Nischenhöhe 1073 - 1162 mm Nischenhöhe 662,5 - 704 mm 2 Geräte-Drehtüren zusammen oder getrennt zu öffnen, je nach Ausführung und Art des Gerätes
SD18ES3 R AEG Kühl-Gefrierkombination mit Kühlraum-Innenbeleuchtung: integrierte LED Beleuchtung 1780 mm Nischenhöhe 10 Jahre Garantie auf den Kompressor (bei Registrierung) Inverter Kompressor LowFrost-Technik im Gefrierraum – weniger Eisbildung und sehr schnelles Abtauen Über 80 % des in Kühlschränken eingesetzten Materials wird am Ende des Produktlebenszyklus recycelt Susegana Zertifizierung über hundertprozentige Verwertbarkeit aller Abfälle Neue Einbau- Serie erreicht -20 % CO2 im Vergleich zu Vorgängermodellen 50 % weniger Montageschritte, im Vergleich zu Vorgängermodellen reduziert FROSTMATIC für schnelles und
schonendes Gefrieren Obst- und Gemüseschubladen: 2 Höhenverstellbare Glasablagen im Kühlraum: 4 Gefrierschubladen: 3, transparent Flexi-Space: herausnehmbare Glas-Ablagen im Gefrierraum
SPF1002E L Passleiste für Seitenschrank ohne Sockel, 2051 mm hoch Montage zwischen Wand und Korpusseitenfläche
WB25V Wange maßvariabel Korpusfarben Fläche (TxH): 950mm x 873mm
UA30 L Apotheker-Unterschrank 1 Vollauszug mit Dämpfung 2 verstellbare Körbe
VH3072 R Vitrinen-Hängeschrank mit Möbeltür 1 Drehtür 2 verstellbare Fachböden
WB25V Wange maßvariabel Korpusfarben Fläche (TxH): 950mm x 873mm
ZF870QE Stützfuß für Ansetztischplatte Edelstahl-Effekt Eckig höhenverstellbar um 10 mm Belastung max. 150 kg
ZF870QE Stützfuß für Ansetztischplatte Edelstahl-Effekt Eckig höhenverstellbar um 10 mm Belastung max. 150 kg
NRMV Nischenrückwand mit Bildmotiv zwischen Arbeitsplatte und Hängeschränken, ca. 16 mm dick Breite: 1850 mm
KBMH Korpusmaterial /Rückwandverkleidung mit Dickkante, 16 mm dick Holzstruktur horizontal in allen Korpusfarben beidseitig im Außendekor Fläche (BxH): 634mm x 565mm
KBMH Korpusmaterial /Rückwandverkleidung mit Dickkante, 16 mm dick Holzstruktur horizontal in allen Korpusfarben beidseitig im Außendekor Fläche (BxH): 1200mm x 1288mm
KBMH Korpusmaterial /Rückwandverkleidung mit Dickkante, 16 mm dick Holzstruktur horizontal in allen Korpusfarben beidseitig im Außendekor Fläche (BxH): 850mm x 565mm
ZN850E Tablarbodenträger für Regalböden, Glasböden und Abdeckböden 2 Stück im Set
WB25H Wangenboden maßvariabel Korpusfarben Fläche (BxT): 1200mm x 250mm
ZN850E Tablarbodenträger für Regalböden, Glasböden und Abdeckböden 2 Stück im Set
WB25H Wangenboden maßvariabel Korpusfarben Fläche (BxT): 1200mm x 250mm
HRA2502S L Abschlussregal abgeschrägt 2 fest montierte Fachböden
H6002 L Hängeschrank 1 Drehtür 2 verstellbare Fachböden
HE6502 L Eck-Hängeschrank 2 Drehtüren (Öffnungswinkel ca. 155°) 2 verstellbare Fachböden
HR3002 Hängeschrank-Regal 2 verstellbare Fachböden
HD6002 L Hängeschrank für Lichtblendenhaube 723 mm hoch 1 Drehtür 2 verstellbare Fachböden
DPB3640M AEG Flachschirmhaube, Breite 60 cm in Grau Frontblende in Edelstahl montiert und gegen Möbelfront auswechselbar Leistungswerte im Umluftbetrieb (Max/Min): 345 /140 m³/h Bedienung über Drucktasten LED-Leuchtstreifen: (Anzahl der Lampen: 1, Gesamte Beleuchtungsleistung: 4 Watt) Farbtemperatur: 3000 K Anschlusswert: 120 W + 4 W, Anschluss an 220-240 V~ Anzahl der Motoren: 1 Motorleistung: 120 W 2 Metall-Fettfilter Kohleaktivfilter MCFB82ST, PNC 902 986 580, als Sonderzubehör erhältlich Kohleaktivfilter Long Life: MCFB83PL, PNC 902 986 608, als Sonderzubehör erhältlich Hocheffizienter Kohleaktivfilter: MCFB75PR, 902 986 578 als Sonderzubehör erhältlich Abluft- und Umluftbetrieb Geräuschwerte im Abluftbetrieb (Max./Min.): /dB (A) re 1 pW Abluftschlauch: KPIPE150, 942 492 724 als Sonderzubehör erhältlich
HR3002 Hängeschrank-Regal 2 verstellbare Fachböden
PLS60 Arbeitsplatte Platte ca. 40 mm dick, mit gerader Vorderkante, eine Längskante und beide Stirnkanten mit Dekorkante wie Plattenbelag. Max. Länge 4000 mm, mind. Länge / Tiefe 250 mm Belagausführung Kunststoff Kanten 1,0 mm PP Breite: 2702 mm Tiefe: 600 mm
PLS60 Arbeitsplatte Platte ca. 40 mm dick, mit gerader Vorderkante, eine Längskante und beide Stirnkanten mit Dekorkante wie Plattenbelag. Max. Länge 4000 mm, mind. Länge / Tiefe 250 mm Belagausführung Kunststoff Kanten 1,0 mm PP Breite: 1250 mm Tiefe: 600 mm
PLS120 Arbeitsplatte Platte ca. 40 mm dick, mit gerader Vorderkante, eine Längskante und beide Stirnkanten mit Dekorkante wie Plattenbelag. Max. Länge 4000 mm, mind. Länge / Tiefe 250 mm Belagausführung Kunststoff Kanten 1,0 mm PP Breite: 1250 mm Tiefe: 966 mm
20203113002AL HERA LED Set 5 Fach ECOPAD Alu 3W 24V
Schematische Darstellung des Grundrisses
| 270 cm | 310 cm | 97 cm | 125 cm |
| ARBEITSHÖHE 91 cm | |||
| FRONTFARBE | Magnolienweiß |
|---|---|
| FrontDekor | Kunststoff matt |
| Arbeitsplatte | Schichtstoff |
| Backofen | |
|---|---|
| Marke | AEG |
| Modell | BD742P |
| EEK* |
|
| Kochfeld | |
|---|---|
| Marke | AEG |
| Modell | IKB64411XB |
| EEK* |
| Dunstabzug | |
|---|---|
| Marke | AEG |
| Modell | DPB3640M |
| EEK* |
|
| Kühl-Kombi | |
|---|---|
| Marke | AEG |
| Modell | SD18ES3 |
| EEK* |
|
| Geschirrspüler | |
|---|---|
| Marke | AEG |
| Modell | FD395V |
| EEK* |
|
| FORM | GERÄTE | STIL | FARBE |
|---|---|---|---|
| Insel | JA | Landhaus | weiß |
Elzer Küchen Centrum GmbH
Dieselstr. 1b
65549 Limburg
ausstellungskuechen.com ist das Portal für Ausstellungsküchen. Fachhändler aus ganz Deutschland bieten hier ihre Ausstellungsküchen und Musterküchen zum Verkauf an. Kunden können aus einem umfangreichen Angebot wählen. Der große Vorteil unseres Portals: Du als Kunde kannst direkt Kontakt zu den Fachhändlern aufnehmen und die Küchen vor Ort anschauen. Auch die Bezahlung erfolgt direkt an den Händler, du hast also immer einen direkten Ansprechpartner. Ein weiterer Vorteil liegt im großen Serviceangebot der Fachhändler. Angefangen von der Beratung bis hin zur Lieferung und Montage stehen dir die Küchen-Experten mit zahlreichen Dienstleistungen zur Seite. Auch eine Garantie ist oft möglich.
Finde jetzt deine Traumküche auf ausstellungskuechen.com!