Für Besucher des
Portals noch
nicht sichtbar
Gerne auch individuell nach Vereinbarung
Anbieter kontaktieren| FORM | GERÄTE | STIL | FARBE |
|---|---|---|---|
| U-Form | JA | Modern | beige |
NEW
Diese Küche wurde kürzlich veröffentlicht
| Marke | Häcker |
|---|---|
| Modell | Top-Soft Kaschmir |
| PREIS |
|
| FORM | U-Form |
| Diese Küche ist erweiterungsfähig | |
moderne ELEMENTA (HÄCKER) Musterküche in trendigen Farbton Kaschmir mit einer weißen Keramik-Arbeitsplatte.
Elektrogeräte von SIEMENS, Spüle und Armatur von FRANKE.
Die Spüle und das Kochfeld sind flächenbündig in die Arbeitsplatte eingelassen.
Die weiteren Highlights der Küche sind ein Ba...
moderne ELEMENTA (HÄCKER) Musterküche in trendigen Farbton Kaschmir mit einer weißen Keramik-Arbeitsplatte.
Elektrogeräte von SIEMENS, Spüle und Armatur von FRANKE.
Die Spüle und das Kochfeld sind flächenbündig in die Arbeitsplatte eingelassen.
Die weiteren Highlights der Küche sind ein Backofen mit Air-Fryer Funktion, ein Kühlschrank mit 0°-Zone und ein Apothekerschrank für jede Menge Stauraum.
Die Küche kann mit weiteren Elementen ergänzt werden.
Der Preis versteht sich inkl. Lieferung & Montage in unserem Liefergebiet.
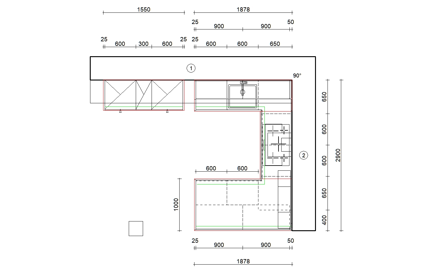
Schematische Darstellung des Grundrisses
| 343 cm | 290 cm | 188 cm | |
| ARBEITSHÖHE 93 cm | |||
| FRONTFARBE | Kaschmir |
|---|---|
| FrontDekor | Lack matt |
| Arbeitsplatte | Keramik |
| Backofen | |
|---|---|
| Marke | Siemens |
| Modell | HB279GBB3 |
| EEK* |
|
| Kühlschrank | |
|---|---|
| Marke | Siemens |
| Modell | KI41FADE0 |
| EEK* |
|
| Kochfeld | |
|---|---|
| Marke | Siemens |
| Modell | EX801HVC1E |
| EEK* |
| Dunstabzug | |
|---|---|
| Marke | Siemens |
| Modell | LC87KFN65 |
| EEK* |
|
| Geschirrspüler | |
|---|---|
| Marke | Siemens |
| Modell | SX63H804BE |
| EEK* |
|
| Spüle | |
|---|---|
| Modell | FRANKE BOX Edelstahl, flächenbündig |
| Armatur | |
|---|---|
| Modell | FRANKE Atlas Neo Zugauslauf, Edelstahl |
| FORM | GERÄTE | STIL | FARBE |
|---|---|---|---|
| U-Form | JA | Modern | beige |
Möbel Kassens GmbH & Co. KG
Ringstr. 9
26897 Esterwegen
ausstellungskuechen.com ist das Portal für Ausstellungsküchen. Fachhändler aus ganz Deutschland bieten hier ihre Ausstellungsküchen und Musterküchen zum Verkauf an. Kunden können aus einem umfangreichen Angebot wählen. Der große Vorteil unseres Portals: Du als Kunde kannst direkt Kontakt zu den Fachhändlern aufnehmen und die Küchen vor Ort anschauen. Auch die Bezahlung erfolgt direkt an den Händler, du hast also immer einen direkten Ansprechpartner. Ein weiterer Vorteil liegt im großen Serviceangebot der Fachhändler. Angefangen von der Beratung bis hin zur Lieferung und Montage stehen dir die Küchen-Experten mit zahlreichen Dienstleistungen zur Seite. Auch eine Garantie ist oft möglich.
Finde jetzt deine Traumküche auf ausstellungskuechen.com!