Vorschau

Für Besucher des
Portals noch
nicht sichtbar

chevron_left
search
1 / 4
share

Moderne Küche mit Glasfronten in aktuellen Farben mit Keramikplatte

Küchenstudio Rottner GmbH
Robert-Bosch-Str. 5, 75233 Tiefenbronn
close chevron_left

Küchenstudio Rottner GmbH

Robert-Bosch-Str. 5
75233 Tiefenbronn

Telefon:
Fax: +49723494640419

Gerne auch individuell nach Vereinbarung

Anbieter kontaktieren
FORM GERÄTE STIL FARBE
Insel JA Modern schwarz

NEW

Diese Küche wurde kürzlich veröffentlicht

31.900 €*
20.900 €
* Ursprünglicher Preis des Küchenstudios
Anbieter kontaktieren
INFOS
Marke Häcker
Modell CONCEPT Murano soft
PREIS 31.900 €*
20.900 €
FORM Insel
* Ursprünglicher Preis des Küchenstudios

Die Küche ist aus dem Jahr 2022, leider ist die Front ein Ausgelaufen und es gibt keinen Ersatz mehr.
Das Objekt ist mit Erstklassischen Elektrogeräten von NEFF, Sanitär von BLANCO und einer Keramikplatte von ADOLF EISEN ausgestattet.
Nähere Informationen erhalten sie in dem Beischreiben (Origin...

MAẞE, Farben & Material

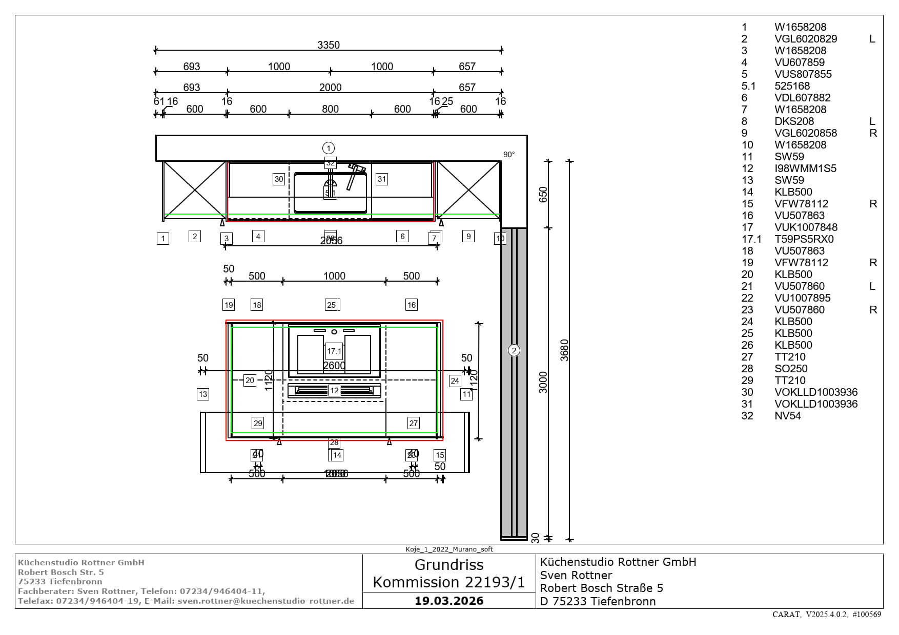
Schematische Darstellung des Grundrisses

1 cm 329 cm 112 cm 210 cm
ARBEITSHÖHE 95 cm
FRONTFARBE Murano soft graphit
FrontDekor Glass matt
Arbeitsplatte Keramik
Elektrogeräte
Backofen
Marke Neff
Modell B58VT68G0
EEK* von A bis G
Dampfgarer
Marke Neff
Modell C18FT28G0
EEK* von A bis G
Kühlschrank
Marke Neff
Modell KI8865DE0
EEK* von A bis G
Geschirrspüler
Marke Neff
Modell S155EB800E
EEK* von A bis G
Kochfeld
Marke Neff
Modell T59PS5RX0
EEK*
Dunstabzug
Marke Neff
Modell I98WMM1S5
EEK* von A bis G
Zubehör
Spüle
Modell ETAGON 700-U
Armatur
Modell FONTAS II

Moderne Küche mit Glasfronten in aktuellen Farben mit Keramikplatte

FORM GERÄTE STIL FARBE
Insel JA Modern schwarz
31.900 €*
20.900 €
* Ursprünglicher Preis des Küchenstudios

Sicher dir deine Küche

Küchenstudio Rottner GmbH
Robert-Bosch-Str. 5
75233 Tiefenbronn

Ansprechpartner: Sven Rottner
Nachricht senden:
captcha=
* Pflichtfelder

Über ausstellungskuechen.com

ausstellungskuechen.com ist das Portal für Ausstellungsküchen. Fachhändler aus ganz Deutschland bieten hier ihre Ausstellungsküchen und Musterküchen zum Verkauf an. Kunden können aus einem umfangreichen Angebot wählen. Der große Vorteil unseres Portals: Du als Kunde kannst direkt Kontakt zu den Fachhändlern aufnehmen und die Küchen vor Ort anschauen. Auch die Bezahlung erfolgt direkt an den Händler, du hast also immer einen direkten Ansprechpartner. Ein weiterer Vorteil liegt im großen Serviceangebot der Fachhändler. Angefangen von der Beratung bis hin zur Lieferung und Montage stehen dir die Küchen-Experten mit zahlreichen Dienstleistungen zur Seite. Auch eine Garantie ist oft möglich.

Finde jetzt deine Traumküche auf ausstellungskuechen.com!