Für Besucher des
Portals noch
nicht sichtbar
Mainzer Str. 87
67657 Kaiserslautern
Gerne auch individuell nach Vereinbarung
Anbieter kontaktieren| FORM | GERÄTE | STIL | FARBE |
|---|---|---|---|
| L-Form | Nein | Modern | weiß |
HOT
Diese Küche wurde in den letzten 48 Stunden sehr oft aufgerufen
| Marke | Häcker |
|---|---|
| Modell | A728 |
| PREIS |
|
| FORM | L-Form |
Als Ausstellungsstück im Abverkauf bieten wir einen hochwertigen Hauswirtschaftsraum der Firma Häcker Küchen an.
Die Möbelteile sind aufgrund von Umbaumaßnahmen bereits abgebaut und stehen bei uns im Lager.
Details:
- Frontfarbe: Kristallweiß
- Arbeitsplattenfarbe: Spachtelbeton Perlgrau
- 3...
Als Ausstellungsstück im Abverkauf bieten wir einen hochwertigen Hauswirtschaftsraum der Firma Häcker Küchen an.
Die Möbelteile sind aufgrund von Umbaumaßnahmen bereits abgebaut und stehen bei uns im Lager.
Details:
- Frontfarbe: Kristallweiß
- Arbeitsplattenfarbe: Spachtelbeton Perlgrau
- 3 Hochschränke (Schuhschrank, Vorratsschrank mit 5 Einhängetablaren, Hochschrank m. 1 festem Boden)
- 40er Unterschrank mit Schubkasten, Auszug und Innenauszug
- 80er Unterschrank mit Schubkasten und 2 Auszügen
- Rollladenaufsatzschrank mit Glasböden und Auszugstablar z.B. für Kleingeräte
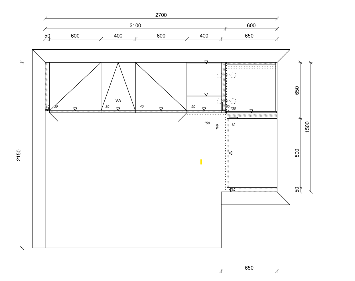
Der Preis versteht sich als Abholpreis. Montage ist gegen Aufpreis möglich. Die Maße können Sie den Bildern entnehmen.
Bei Interesse und Rückfragen gerne melden.
Schematische Darstellung des Grundrisses
| 270 cm | 150 cm | ||
| ARBEITSHÖHE 85 cm | |||
| FRONTFARBE | AV1080 Kristallweiß |
|---|---|
| FrontDekor | Kunststoff matt |
| Arbeitsplatte | Schichtstoff |
| FORM | GERÄTE | STIL | FARBE |
|---|---|---|---|
| L-Form | Nein | Modern | weiß |
Markus Hemmer Küchenstudio e.K.
Mainzer Str. 87
67657 Kaiserslautern
ausstellungskuechen.com ist das Portal für Ausstellungsküchen. Fachhändler aus ganz Deutschland bieten hier ihre Ausstellungsküchen und Musterküchen zum Verkauf an. Kunden können aus einem umfangreichen Angebot wählen. Der große Vorteil unseres Portals: Du als Kunde kannst direkt Kontakt zu den Fachhändlern aufnehmen und die Küchen vor Ort anschauen. Auch die Bezahlung erfolgt direkt an den Händler, du hast also immer einen direkten Ansprechpartner. Ein weiterer Vorteil liegt im großen Serviceangebot der Fachhändler. Angefangen von der Beratung bis hin zur Lieferung und Montage stehen dir die Küchen-Experten mit zahlreichen Dienstleistungen zur Seite. Auch eine Garantie ist oft möglich.
Finde jetzt deine Traumküche auf ausstellungskuechen.com!