Für Besucher des
Portals noch
nicht sichtbar
Gerne auch individuell nach Vereinbarung
Anbieter kontaktieren| FORM | GERÄTE | STIL | FARBE |
|---|---|---|---|
| Insel | JA | Modern | grau |
HOT
Diese Küche wurde in den letzten 48 Stunden sehr oft aufgerufen
| Marke | nobilia |
|---|---|
| Modell | Flash Seidengrau Hochglanz |
| PREIS |
|
| FORM | Insel |
| Diese Küche ist erweiterungsfähig | |
Alles drin und klar in Optik und Funktion.
Auch nach Ihren Wünschen veränderbar oder zu ergänzen. Sprechen Sie uns an.
Grifflose Traumküche mit hochwertigen Bosch Geräten, Induktion mit integrierter Abzughaube, Backofen mit Dampfstoßfunktion, Einbau Mikrowelle mit Heißluft,, Großraumkühl...
Alles drin und klar in Optik und Funktion.
Auch nach Ihren Wünschen veränderbar oder zu ergänzen. Sprechen Sie uns an.
Grifflose Traumküche mit hochwertigen Bosch Geräten, Induktion mit integrierter Abzughaube, Backofen mit Dampfstoßfunktion, Einbau Mikrowelle mit Heißluft,, Großraumkühlschrank und Silence Spüler sind extraklasse. Die Rückwände sind in Steindekor ebenfalls dabei. Die Wandschränke mit LED Arbeitsplatzbeleuchtung ausgestattet und die unverwüstliche Blanco Silgranit Spüle mit Blanco Armatur machen das Ensemble zum Traumpaket. Griffmuldenbeleuchtung ist ebenfalls inklusive! Mehr Luxus geht nicht.
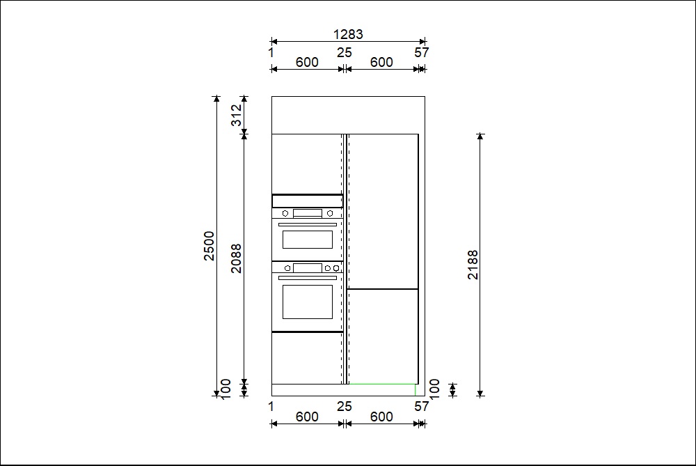
Die Länge der Wandseite beträgt 240x60cm BxT
Die Insel ist 255,4x95,9cm BxT
Die Hochschränke 122,5x60x218,8cm BxTxH
Und das ist alles drin:
NU2A60-X XL-Auszugschrank 2 Auszüge
MP-L Beleuchtung Line N-Griffmulde L-Profil
NGSB60-X XL-Türfront für vollintegrierte Unterbaugeräte inklusive Distanzleisten, edelstahlfarbig
MP-L Beleuchtung Line N-Griffmulde L-Profil
SMH4HVX00E BOSCH Vollintegrierter Geschirrspüler SMH4HVX00E, 6 Programme Ausstattung: Fassungsvermögen: 14 internationale Maßgedecke, 6 Programme: Intensiv 70°C, Express 60°C, Automatik 45-65°C, Eco 50°C, Leise 50°C, Favorit, LEDNachfüllanzeige für Salz und Klarspüler, Boden: Polinox, höhenverstellbarer Oberkorb im beladenen Zustand, 2 klappbare Tassenablagen, 2 klappbare Tellerreihen im Oberkorb, 4 klappbare Tellerreihen im Unterkorb, Besteckschublade, Komfortrollen mit Korbstopper im Unterkorb, Auto-Dosierung, Frontverschiebetechnik, hocheinbaufähig, SmartHome, Startzeitvorwahl, akustisches Programmende- Signal, Display, Bedienung via Druckknöpfen, Technische Daten: Anschlusswert 2,4 kW 220-240 V, Absicherung 10 A, Geräuschpegel 46 db (A) re1pW, Verbrauch 85 kWh/100 Zyklen 9 l/Zyklus, Energieeffizienzklasse D, Geräuschklasse C, Sicherheitseinrichtungen AquaStop, max. zulässiges Frontgewicht 11 kg, Befestigung Befestigung seitlich, Gerätemaße 598 x 815 (865) x 550 mm, links Zulauf 1.650 mm 1.900 mm, max. mögliche Ablaufschlauch-Verlängerung 1.950 mm
NSPUAL60-X XL-Spülenschrank 1 Innenblende, 1 Front, ohne Auszugschienen und Bohrungen
MP-L Beleuchtung Line N-Griffmulde L-Profil
BLANCO METRA 6 S SILGRANIT anthrazit Einbau-Spüle reversibel Zub. Edelstahl mit Ablauffernbedienung, mit Zubehör Untermaß: 600 mm Lieferumfang: Multifunktionsschale aus Edelstahl, Ablaufgarnitur mit Raumsparrohr, 2 x 3 1/2''
Korbventil mit integrierter Ablauffernbedienung (Drehknopf) für das Hauptbecken
BLANCO MIDA HD SILGRANIT-Look anthrazit Küchenarmatur Hochdruck mit Rohrauslauf Lieferumfang: - Auslauf schwenkbar 360° - Hahnlochbohrung mit Ø 35 mm erforderlich - BLANCO-Kartusche mit keramischen Dichtscheiben - Flexible Anschlussschläuche mit 350 mm Länge und 3/8'' Mutter für besonders leichte und sichere Montage - LGA zertifiziert
BLANCO SELECT II XL 60/3 Kunststoff, Aluminium Abfallsystem Lieferumfang: Auszugssystem zur Frontanbindung, Systemabdeckung, 1 x 30 l und 2 x 8 l Eimer, 1 x Eimerdeckel 8 l
NU2A60-X XL-Auszugschrank 2 Auszüge
MP-L Beleuchtung Line N-Griffmulde L-Profil
NGSDKOA-1X L XL-Geräte-Umbau Backofen und Dampfgarer / Kompaktgerät Nischenhöhe: 450 mm Nischenhöhe: 590 mm 1 Tür, 1 Einlegeboden, 1 feste Ausgleichsblende, 1 Auszug
HRG578CB7 BOSCH Einbau-Backofen Schwarz Serie 6, KT, LCD (weiß), Py, 12/Auto30, HC, XXL-Backofen mit Dampfstoßfunktion, schwarz, Auszug nachrüstbar, Bratenthermometer
CMA585GB1 BOSCH Einbau Mikrowelle mit Heißluft, 60 x 45 cm Schwarz, 900 W/L-Stufen: 5 Stück/ schwarz/15 Heizungsarten
NGMZ-1X Zwischen-Griffmulde zur Planung zwischen nebeneinander stehenden Highboards und Hochschränken
NGS194-1X R XL-Geräte-Umbau Kühl-Gefrierautomat Nischenhöhe: 1580 - 1940 mm 2 Gerätetüren
KIR81SOE0 R BOSCH Serie 6 Einbau Kühlschrank 177.5 x 56 cm Flachscharnier SmartCool Flachscharnier, Profi-Türdämpfung easy Installation Leistung und Verbrauch Energieeffizienzklasse: E Nutzinhalt gesamt: 319 l Energieverbrauch / Jahr: 115 kWh/a Klimaklasse: SN-ST Geräuscheffizienzklasse /Geräusch-Wert: C / 37 dB Design Open Assist Dim Light sanft aufdimmende LEDInnenbeleuchtung Komfort und Sicherheit TouchControl - Elektronische Temperaturregelung, exakt digital ablesbar FreshSense -Konstante Temperatur durch intelligente Sensortechnik Abtau-Automatik im Kühlteil Akustischer Türalarm bei geöffneter Tür Super-Taste: Super Kühlen Kühlteil Nutzinhalt Kühlfächer: 319 l 7 Abstellflächen aus Sicherheitsglas (6 höhenverstellbar), davon ein Vario Shelf (teilbare Glasablage), 2 Glasplatten ausziehbar 6 Türabsteller, davon 1 Butter-/Käsefach Spezial-Flaschenrost, glanzverchromt 2 Flaschenabsteller Frischhaltesystem 1 VitaFresh plus Schublade auf Teleskopschienen mit Feuchtigkeitsregulierung hält Obst und Gemüse vitaminreich und bis zu 2x länger frisch, 1 MultiBox auf Teleskopschienen - Transparente Schublade mit Wellenboden, ideal zur Lagerung von Obst und Gemüse. Maße Gerätemaße ( H x B x T): 177.2 cm x 55.8 cm x 54.5 cm Nischenmaße (H x B x T): 177.5 cm x 56.0 cm x 55.0 cm Technische Informationen Türanschlag rechts, wechselbar Anschlusswert: 90 W 220 - 240 V Länge des Anschlusskabel: 230 cm Zubehör 1 x Schwerlastsatz Flaschenkamm Länderspezifische Optionen Auf Basis der Ergebnisse der Normprüfung über 24 Std. Tatsächlicher Verbrauch abhängig von Nutzung/Standort des Geräts.
UWR25-X XL-Wange für Raumplanung Tiefe: 250 - 1166 mm, beidseitig mit Kante belegt, inkl. Bodenprofil
NUI2A80-X XL-Auszugschrank 1 Schubkasten mit Auszugsblende, 1 Innenschubkasten mit Mitnehmer, 1 Auszug
MP-L Beleuchtung Line N-Griffmulde L-Profil
BE80E Holz-Besteckeinsatz Eiche Ausführung in Eiche Massivholz
NK2A90-X XL-Kochstellenschrank 2 Auszüge, 1 Konstruktionsboden zur Wärmeisolation
MP-L Beleuchtung Line N-Griffmulde L-Profil
PXX895D66E BOSCH Kochfeld m. Dunstabzug (Ind.) 80 cm Mit Rahmen aufliegend EEK: B, Ab/Umluft, Serie 8 4 Induktions-Kochzonen mit Topferkennung, 17 Leistungsstufen, 2 Flex InduktionsZonen, DirectSelect Premium MoveMode,
varioMotion, 1 PerfectCook Kochsensor inklusive, PerfectFry PerfectAir, carbon black Bratsensor mit 5 Temperatur stufen, PowerBoostFunktion für alle Kochzonen PanBoost: PowerBoostFunktion für Pfannen, TopControl Digitalanzeige,
Timer mit Abschaltfunktion je Kochzone Kurzzeitwecker Countup Timer ReStart, QuickStart, Home Connect Funktion (WLAN) Schmelzfunktion, 2 stufige Restwärmeanzeige je Kochzone, Hauptschalter Topferkennung PowerManagement Funktion Automatische Sicherheitsabschaltung Kindersicherung Wischschutzfunktion Energieverbrauchsanzeige Vollintegrierter Dunstabzug max. Lüfter-Leistung 650 m³h 68 dB A. Geeignet für Abluft oder Umluftinstallation in 4 verschiedenen Varianten (ungeführt, teilgeführt und vollgeführte Umluft oder Abluft). Installations Zubehör für die ungeführte Umluft, darunter vier cleanAir- Geruchsfilter und ein Teleskop-Schiebeelement, sind im Lieferumfang des Kochfeldes enthalten. Das mitgelieferte Zubehör ermöglicht eine einfache und schnelle Installation und ist in allen Arbeitsplattentiefen =60 cm planbar. Für andere Installationsarten wird eines der folgenden Zubehörsets empfohlen:, Notwendig bei Abluft - immer als Geräteset bestellen! Im Geräteset ist der erste relevante Bogen bereits enthalten: Arbeitsplattentiefe = 60 cm gekürzte Auszüge (90° „S“ Flachkanalbogen HEZ9VDSB4, männlich) Arbeitsplattentiefe = 70 cm- Standardauszüge (90° „L“ Flachkanalbogen HEZ9VDSB2, männlich) Weiteres Zubehör für die Luftführung muss auf Basis der individuellen Planung gesondert bestellt werden. Hierzu bieten wir umfangreiches Zubehör an. Notwendig bei teil- und vollgeführter Umluft -immer als Geräteset bestellen! Im Geräteset ist der erste relevante Bogen bereits enthalten: Arbeitsplattentiefe = 60 cmgekürzte Auszüge (90° „S“ Flachkanalbogen HEZ9VDSB4, männlich) Arbeitsplattentiefe = 70 cm - Standardauszüge (90° „L“ Flachkanalbogen HEZ9VDSB2, männlich) Für eine teilgeführte Umluft bis in den Sockelbereich bieten wir eine Vorzugsverrohrung als Zubehör-Set HEZ9VDKR2 an (ausgelegt für eine Arbeitshöhe bis zu 960 mm). Für eine individuelle vollgeführte Umluft steht umfangreiches Sonder- Zubehör zur Verfügung.
NUI2A80-X XL-Auszugschrank 1 Schubkasten mit Auszugsblende, 1 Innenschubkasten mit Mitnehmer, 1 Auszug
MP-L Beleuchtung Line N-Griffmulde L-Profil
BE80D Besteckeinsatz Depot rutschhemmende Softtouch Oberfläche, schiefergrau, Höhe: 49 mm, passend für Schubkastentiefe 500 mm, Seitentiefe: 561 mm
UWR25-X XL-Wange für Raumplanung Tiefe: 250 - 1166 mm, beidseitig mit Kante belegt, inkl. Bodenprofil
RKS-79 XL-Rückwandverkleidung 16 mm stark, durchgehende Höhe, inkl. Bodenprofil, Breite: 250 - 2000 mm, lieferbar in allen Korpus- und APL-Dekoren, Vario-Clip-Befestigung, bei Repro aufrechte Holzmaserung Lieferbare Bodenprofil-Farben: 010 Schwarz 014 Edelstahl-Optik
UWR25-X XL-Wange für Raumplanung Tiefe: 250 - 1166 mm, beidseitig mit Kante belegt, inkl. Bodenprofil
NU90-X XL-Unterschrank 2 Türen, 2 Einlegeböden Tiefe: 350 mm
MP-L Beleuchtung Line N-Griffmulde L-Profil
1000014 Ecksteckdose DIDI Edelstahl
NVM54 Nischenverkleidung mit Motiv beidseitig beschichtet, Vorderseite mit Motiv bedruckt, 16 mm stark, Kantenbeschichtung rundum
NWKSGL60-1 Wandschrank Schwingklappe 1 Schwingklappe, Segmentglasfront, Klarglas Nr. 01, 2 Glaseinlegeböden
MP-39 Mehrpreis Glaswechsel Schwarzglas
MP-LMP-O Wandschrankbeleuchtung oben mit LED-Lichtausführung MANILA PLUS
NWGS60-1 L Wandschrank Segmentglastür 1 Tür, Klarglas Nr. 01, 2 Glaseinlegeböden
MP-39 Mehrpreis Glaswechsel Schwarzglas
MP-LMP-O Wandschrankbeleuchtung oben mit LED-Lichtausführung MANILA PLUS
NWGS60-1 R Wandschrank Segmentglastür 1 Tür, Klarglas Nr. 01, 2 Glaseinlegeböden
MP-39 Mehrpreis Glaswechsel Schwarzglas
MP-LMP-O Wandschrankbeleuchtung oben mit LED-Lichtausführung MANILA PLUS
NWKSGL60-1 Wandschrank Schwingklappe 1 Schwingklappe, Segmentglasfront, Klarglas Nr. 01, 2 Glaseinlegeböden
MP-39 Mehrpreis Glaswechsel Schwarzglas
MP-LMP-O Wandschrankbeleuchtung oben mit LED-Lichtausführung MANILA PLUS
20203113002AL HERA LED Set 4 Fach ECOPAD Alu 3W 24V
APD100 Arbeitsplatte APD mit Dekorkante vorn und seitlich mit gerader Dekorkante, 1,5 mm stark. Bis 1000 mm tief.
Breite: 2554 mm
Tiefe: 959 mm
APD60 Arbeitsplatte APD mit Dekorkante vorn und seitlich mit gerader Dekorkante, 1,5 mm stark. Bis 600 mm tief.
Breite: 2400 mm
Tiefe: 600 mm
LSET-SMART36-FB LED-Startset mit Fernbedienung, bestehend aus: 2000 mm Anschlusskabel mit ZigBee Emotion Dimmer Smart Switch LED Konverter 36 W / 12 V DC 2000 mm Anschlusskabel mit 6fach Verteiler, 2000 mm Netzkabel mit Stecker, inklusive 4 - Kanal Fernbedienung FB4K, für die Steuerung von bis zu vier Beleuchtungsgruppen.
Schematische Darstellung des Grundrisses
| 60 cm | 363 cm | 96 cm | 256 cm |
| ARBEITSHÖHE 93 cm | |||
| FRONTFARBE | Seidengrau Hochglänzend |
|---|---|
| FrontDekor | Lack Hochglanz |
| Arbeitsplatte | Schichtstoff |
| Mikrowelle | |
|---|---|
| Marke | Bosch |
| Modell | CMA585GB1 |
| EEK* |
| Backofen | |
|---|---|
| Marke | Bosch |
| Modell | HRG578CB7 |
| EEK* |
|
| Geschirrspüler | |
|---|---|
| Marke | Bosch |
| Modell | SMH4HVX00E |
| EEK* |
|
| Kühlschrank | |
|---|---|
| Marke | Bosch |
| Modell | KIR81SOE0 |
| EEK* |
|
| Dunstabzug | |
|---|---|
| Marke | Bosch |
| Modell | PXX895D66E |
| EEK* |
|
| FORM | GERÄTE | STIL | FARBE |
|---|---|---|---|
| Insel | JA | Modern | grau |
Elzer Küchen Centrum GmbH
Dieselstr. 1b
65549 Limburg
ausstellungskuechen.com ist das Portal für Ausstellungsküchen. Fachhändler aus ganz Deutschland bieten hier ihre Ausstellungsküchen und Musterküchen zum Verkauf an. Kunden können aus einem umfangreichen Angebot wählen. Der große Vorteil unseres Portals: Du als Kunde kannst direkt Kontakt zu den Fachhändlern aufnehmen und die Küchen vor Ort anschauen. Auch die Bezahlung erfolgt direkt an den Händler, du hast also immer einen direkten Ansprechpartner. Ein weiterer Vorteil liegt im großen Serviceangebot der Fachhändler. Angefangen von der Beratung bis hin zur Lieferung und Montage stehen dir die Küchen-Experten mit zahlreichen Dienstleistungen zur Seite. Auch eine Garantie ist oft möglich.
Finde jetzt deine Traumküche auf ausstellungskuechen.com!